Guest Rooms and Suites

Prince Dog Cottage

There are three types of cottages available depending on the number of guests, and the interiors are divided into living and sleeping areas, making them ideal for family or small group trips.
For safety and hygiene, we have various facilities both indoors and outdoors to ensure a pleasant stay with your dog, including fences, foot washing areas, and leash hooks.
E and F cottages come with a terrace and private garden!
Enjoy a wonderful holiday with your dog in a cottage surrounded by the warmth of the forest.

ドッグコテージ_テラス-9

*Private vehicles are not permitted in the cottage area.
*Dog Cottages are exclusively for guests staying with dogs. Guests without dogs are not permitted to stay.
*Dog Cottage A does not have a terrace or a private garden.
*Please note that no excessive pest or animal control measures (such as intensive disinfection) are carried out inside or around the cottages. Insect repellent and insect control items are provided in the cottages.
*The use of fire is strictly prohibited inside the cottages. Bringing in cooking appliances or cooking inside the cottages is not permitted.

Guests with reservations are required to fully read, understand, and agree to the terms and conditions and confirmation items listed below, and submit the “Pet Accommodation Stay Agreement” to the hotel no later than two days prior to the date of stay.

Prince Dog Cottage
Prince Forest Dog Village

Dog Cottage A

Floor:1F
Room Size:
47.4sq.m/510.21sq.ft.
Bed size: 105cm×195cm×43cm
Max Occupancy:4

Internet Access:
Free Wi-Fi access is available inside every room.

DOG-A-300x169

Floor Plan >

Prince Forest Dog Village

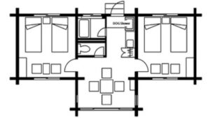
Dog Cottage E

Floor:1F
Room Size:
74.8sq.m/805.1 sq.ft
Bed Size:95cm×195cm
Max Occupancy: 6

Internet Access:
Free Wi-Fi access is available inside every room.

DOG-E-300x169

Floor Plan >

Prince Forest Dog Village

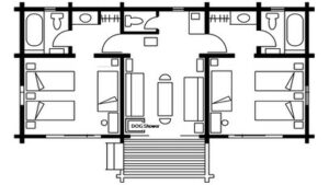
Dog Cottage F

Floor:1F
Room Size: 95sq.m/1022.6 sq.ft
Bed Size:95cm×206cm
Max Occupancy: 8

Internet Access:
Free Wi-Fi access is available inside every room.

DOG-F-300x169

Floor Plan >

Amenities

  • Towels
  • Japanese bathrobe
  • Bath amenities
  • Toothbrush
  • Sanitary bag
  • Laundry bag
  • Tea set

Equipments

  • Air Conditioner: 1 unit
  • Bathroom & Toilet: Separate
  • TV
  • Hair Dryer
  • Refrigerator
  • Electric Kettle
  • Safety Deposit Box
  • Microwave Oven
  • Wi-Fi Available

Dog Equipments

  • Shower with Foot Wash Area
  • Hair Dryer
  • Ozone Clear (Ozone Deodorizer)
  • Entrance Barrier
  • Paw Wiping Towel
  • Toilet Sheets
  • Toilet Exclusive Bags
  • Vacuum Cleaner “Cat&Dog”
  • Complete Set of Cleaning Tools
PrevNext
April 2026
SuMoTuWeThFrSa
   1234
567891011
12131415161718
19202122232425
2627282930  
© 2026 mekizi.info. All rights reserved. Privacy Policy Terms of Use Cookie Policy Contact